Quadrilocale in vendita

Azzano San Paolo, Via michelangelo buonarroti
€ 330.000
4 locali 4 locali
162 Mq 162 Mq
2 bagni 2 bagni

Quadrilocale in vendita

Azzano San Paolo, Via michelangelo buonarroti

Descrizione annuncio

AZZANO SAN PAOLO:

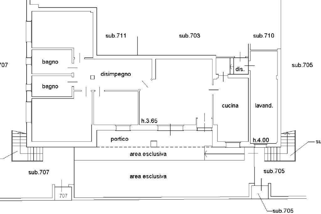
Proponiamo in vendita a pochi passi dal centro paese, appartamento quadrilocale al piano terra in villa trifamiliare con ingresso in comune. L’immobile dispone di area esclusiva privata con portico, ideale per momenti di relax all’aperto.

L’appartamento di 130 mq interni è composto da cucina abitabile, soggiorno ampio e luminoso con esposizione est-sud che garantisce luce naturale, 3 camere spaziose, doppi servizi e lavanderia.

Ristrutturato esternamente nel 2024, con cappotto termico sulle facciate, tetto isolato e linea vita. Il giardino è dotato di impianto di irrigazione automatica, ideale per la cura degli spazi esterni.

L’immobile offre zanzariere, fotovoltaico da 7 kW con batteria di accumulo e prese per la ricarica di auto elettriche, oltre a tenda da sole motorizzata, tutte le tapparelle motorizzate e serramenti in legno di ciliegio con doppio vetro, aria condizionata con tre split garantendo comfort, sicurezza ed efficienza energetica.

Classe energetica APE A1.

Completano la proprietà un box di circa 25 mq e la posizione in una zona tranquilla e residenziale, ideale per chi cerca spazio, privacy e modernità.

ll gruppo Tecnocasa offre consulenza riguardo tutte le fasi della compravendita e valutazioni gratuite del proprio immobile.

Inoltre la collaborazione con il gruppo Kiron ci consente di fornirvi consulenza a titolo gratuito ed informativo per l'erogazione dei mutui bancari.

Mostra tutto

Nelle vicinanze

Trasporto pubblico Trasporto pubblico
Stezzano
Stezzano
1,9 Km
533
533
290 m
534
534
290 m
Ricariche auto elettriche Ricariche auto elettriche
A2A BG Scienza
1,0 Km
IperStation Orio Center
1,7 Km
A2A BG Quasimodo
1,8 Km
Icelab Bergamo Palaghiaccio
1,9 Km
A2A BG Ravizza
2,1 Km
Scuole Scuole
Scuola secondaria Papa Giovanni XXIII
470 m
Scuola primaria fratelli Piacentini
670 m
Istituto Superiore Bortolo Belotti
950 m
Scuola primaria Italo Calvino
1,0 Km
Scuola materna Colognola
1,3 Km
Farmacia Farmacia
Farmacia
500 m
Lloyds Farmacia Comunale
710 m
Farmacia Vaghi
1,2 Km
Farmacia Campagnola
1,9 Km
Iper Farma
2,0 Km
Ospedali Ospedali
Associazione psicologia e psicoterapia Il Conventino
2,8 Km
Humanitas Gavazzeni
3,0 Km
Casa di Cura Beato Luigi Palazzolo
3,0 Km
Supermercati Supermercati
Conad
720 m
Carrefour Express
1,5 Km
Famila Store
1,7 Km
SuperDì
2,0 Km
Iper
2,0 Km
Negozi Negozi
Star Market's
300 m
Negozi
330 m
Mama Noél
470 m
MD Market
670 m
Le Matte
710 m
Bar Bar
BRÓ Eat.Drink
620 m
MiViDa
1,2 Km
Bar
1,8 Km
Bar Sport
1,8 Km
Caroli Inn Pub
1,9 Km
Ristoranti Ristoranti
Mamma Mia
320 m
Happy boys
360 m
Hotel Cascata
740 m
Pizzeria Aurora
1,2 Km
Grano Puro
1,2 Km
Mostra tutto

Caratteristiche

Rif.:
61177234
Piano:
Terra con giardino di 2 con ascensore
Totale piani:
2
Box:
2
Posti auto:
1
Terrazzi:
1
Mostra tutto
Prezzo Prezzo
€ 330.000
Rata mutuo Rata mutuo
€ 1.541 / mese
Spese annue Spese annue
€ 0
Proponi il tuo prezzoProponi il tuo prezzo

Classe Energetica

A1
A1
A1
A1
A1
A1
A1
A1
A1
EP globale non rinnovabile:
9557.00 kW h/m² anno
EP globale rinnovabile:
51.43 kW h/m² anno
EP invernale del fabbricato:
EP estiva del fabbricato:
Anno di costruzione:
1971
Riscaldamento:
Autonomo
Tipo impianto:
A radiatori
Tipo alimentazione:
Metano

Ti interessa visionare l'immobile?

Fissa un appuntamento  Fissa un appuntamento

Richiedi informazioni

Clicca su Leggi per aprire l'informativa
* Questi campi sono obbligatori

Calcola il tuo mutuo

Semplice e senza impegno
Anticipo

( % )
Mutuo

( % )

pochi semplici passi

inserisci i tuoi dati
Questionario completato
Grazie per aver richiesto un appuntamento senza impegno con un nostro Consulente del Credito e Assicurativo.

Hai inserito correttamente tutti i dati necessari e a breve riceverai una e-mail con un link da convalidare per inviare i tuoi dati.
Affiliato
Tecnocologno Srl
Via Don A. Donadoni, 5 24052 Azzano San Paolo (BG)

Il nostro staff


  • Anna Giassi
    Responsabile

  • Aurora Jashari
    Coordinatrice

  • Riccardo Villa
    Responsabile
Via Don A. Donadoni, 5 24052 Azzano San Paolo (BG)
Zona: Azzano San Paolo
Mostra su mappa
Orari: lun - ven 8.30 - 12.30 | 14.30 - 20.00 sabato 8.30 - 12.30 | 14.30 - 18.00
Affiliato
Tecnocologno Srl
Via Don A. Donadoni, 5 24052 Azzano San Paolo (BG)

2026 Tecnocasa Franchising S.p.A. - P. IVA 08365160152 - Via Monte Bianco 60/A 20089 Rozzano (MI). Ogni agenzia ha un proprio titolare ed è autonoma. Privacy policy | Policy utilizzo | Cookie policy